
CОД для каждого: координатор проекта



Почему российские промышленные и строительные компании выбирают Среду общих данных Sarex? Одна из главных причин — возможность организовать единое хранилище инженерно-технических данных под проекты для неограниченного количества пользователей как внутри команды, так и с подрядчиками. Вторая — заметный рост эффективности каждого сотрудника компании, включенного в совместную работу.
В этой статье рассказываем о пользе среды общих данных, в частности, СОД Sareх, для координаторов проектов, которыми в разных компаниях также могут выступать аудиторы и BIM-менеджеры, по результатам бесед, проведенных с пользователями продукта.
Обычно на координатора проекта возлагаются задачи по проверке входящей документации. Он в ежедневном формате взаимодействует со всеми участниками проекта — ГИПом, техническими экспертами, проверяющими документацию по узким дисциплинам, исполнителями — генпроектировщиком и генподрядчиком. Специалист следит за статусом работы над каждым документом, запускает согласования, оперативно принимает в работу и выгружает новые версии в общий доступ.
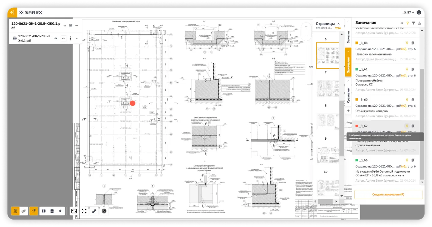
Для координатора проекта СОД становится единым пространством для организации инженерного документооборота. На базе системы он отслеживает статусы выполнения задач и работы с замечаниями, формирует реестры замечаний. С помощью СОД координаторы собирают и предоставляют руководителям проекта необходимую им аналитику.
Для координаторов, аудиторов и BIM-менеджеров проектов, имеющих опыт использования сред общих данных, например, Autodesk BIM 360, переход на популярный российский продукт СОД Sareх будет быстрым и комфортным. Продукт интуитивно понятен, поэтому уже после небольшого вводного курса сотрудник сможет приступить к практическому использованию.
Специалисты, которые отвечают за координацию строительных проектов и уже используют СОД Sareх, отмечают для себя ряд важных преимуществ.
Первое, что отмечают координаторы, аудиторы и BIM-менеджеры проектов при использовании СОД Sarex — это легкость управления проектными данными, в том числе за счет автоматизации управления актуальными версиями документов. Зайдя в систему, эти специалисты получают однозначный ответ, какая версия документа является финальной.
Удобство «одного окна». У всех участников строительного проекта есть доступ к единому пространству для работы с документами, процесса согласований и постановки замечаний.
Возможность гибкого предоставления прав доступа. Если держателем СОД является координатор проекта, то он может всецело управлять процессом, определять необходимые правила и уровни доступа для всех участников. Для предоставления документов с ограниченным правом доступа специалисту не нужно создавать запароленные папки или пересылать документы по электронной почте. Система дает возможность решить эти задачи просто и эффективно с помощью настроек прав доступа.
Прозрачная система согласования документации. Координатору, использующему СОД Sarex, не составляет труда отслеживать и держать на контроле статус согласования документации, видеть, на ком «завис» процесс, оперативно связываться с этим сотрудником и предоставлять ему ссылку на нужный документ. СОД исключает необходимость использования электронной почты для отправки проверок, что делает работу команды более централизованной, быстрой и эффективной.
Автоматизированное формирование реестра замечаний. Координатору, аудитору или менеджеру не нужно создавать реестр замечаний вручную — его можно выгрузить прямо из среды общих данных и сформировать отчет по неотработанным задачам по подрядчику.
Удобная система фильтрации. СОД Sarex позволяет быстро находить информацию, собирать аналитику, выставляя различные фильтры, например, по исполнителю или типу задач.
Возможность сравнивать версии. В СОД Sarex есть функционал для удобной работы с версионностью документов — можно посмотреть, какие замечания были, к примеру, в первой версии документа и быстро разобраться, учтены ли они в финальной версии.
Если говорить об отличительной особенности СОД Sarex от других продуктов, то стоит упомянуть, что ее функционал является частью большой платформы для цифровизации строительства, и с 2025 года в ней стали доступны инструменты календарно-сетевого планирования (КСП) и BI-аналитики.
КСП в СОД дает возможность координатору проекта создавать календарно-сетевые графики и удобно управлять ими, чтобы четко видеть, когда и какие задачи должны быть выполнены, а также понимать их взаимосвязь. Это помогает планировать все этапы проекта, отслеживать зависимость между задачами и минимизировать риски задержек. С помощью КСП в СОД можно эффективно распределять ресурсы, учитывая загрузку участников проекта, и оперативно корректировать план в случае непредвиденных ситуаций, обеспечивая тем самым оптимизацию рабочего процесса и соблюдение сроков.
BI-аналитика в СОД представляет собой детализированные дашборды, которые позволяют специалисту в режиме реального времени определять статус согласований: какие документы находятся в риске просрочки, кто отвечает за задержки, а также увидеть эффективность бизнес-процессов и их участников.
Главным результатом внедрения СОД Sarex координаторы проектов называют значительное сокращение времени на формирование текущего статуса согласований, оповещения команды и ведение реестра замечаний. Причем чем масштабнее проекты, тем больше объем документации, и тем более существенной получается эта экономия времени.
Если до использования СОД специалистам, отвечающим за координацию проекта, приходилось собирать данные из разных источников — электронной почты, серверы, сетевые папки и так далее, то сейчас вся информация хранится в одном месте, что упрощает задачу сбора, анализа и систематизации данных. СОД Sareх также позволяет в автоматическом режиме получать аналитическую информацию по различным запросам.
Будьте в курсе всех наших новостей и обновлений, повышайте отраслевую экспертизу вместе с нами